Загрузка. Пожалуйста, подождите...
  • Главная
  • Линии розлива воды в 19 литровые бутыли
  • Контакты
Главная
Мойка ящиков
Оборудование для КЕГ
Фасовка капсул
  • Розлив в 19л бутыли
    Полуавтоматические мойки
    Автоматические мойки
    Моноблоки розлива в 19л бутыли
    Триблоки розлива в 19л бутыли
    Дополнительное оборудование
Ополаскиватели
  • Оборудование для розлива
    Автомат для розлива
    Полуавтомат для розлива
    Моноблоки для розлива
    Триблоки для розлива
Укупорочное оборудование
Этикеровочное оборудование
Транспортеры
  • Упаковочное оборудование
    Автоматическое
    Полуавтоматическое
скачать dle лучшие mp3

 ЛИНИИ РОЗЛИВА В 19 ЛИТРОВЫЕ БУТЫЛИ В БАЗОВОЙ КОМПЛЕКТАЦИИ. 

 Коплекты оборудования обеспечивают полный цикл розлива в 19 литровые бутыли, от мойки, ополаскивания, розлива, укупорки, надевания пакетов до выставления готовой продукции на транспортировочный палет. Возможно изготовление оборудования по индивидуальному заказу в соответствии с вашими производственными потребностями и бюджетом.

В отличии от триблоков:

• Имеют компактные размеры позволяют одному оператору обслуживать всю линию розлива;
• Возможность постоянного контроля за чистотой бутылей перед установкой их на этап налива;
• Перемещения бутылей происходят на высоте 700 мм от пола, что снижает физическую нагрузку на оператора;
• Подача вода на розлив осуществляется из магистрали с необходимым давлением и расходом воды. Возможна установка собственного насоса для подачи воды на розлив из расходной емкости;
• Блок розлива по уровню обеспечивает наилучшую точность налива, чем розлив по времени и не сбрасывает излишки продуктовой воды. Можно реализовать и другие принципы розлива по времени, расходометрами и т.д.;
• Наличие блока подъема бутылей для надевания пакетов уже в базовой комплектации, исключает необходимость покупки дополнительного оборудования;

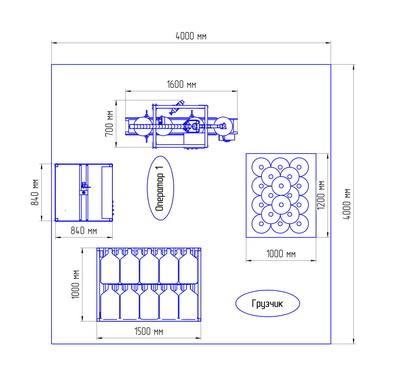
Линия розлива воды в 19 литровые бутыли до 120 бутылей в час
 

Состав линии:
1. Полуавтоматический модуль мойки МП19М-120
2. Автоматический моноблок МНА19М-120
3. Стелаж транспортировочный на 46 бутылей СТ46


1 шт.
1 шт.
2 шт.

 697 000* руб. с НДС 22%  

Оператор загружает бутыли в модуль мойки, переставляет их по зонам обработки и выгружает на транспортер моноблока. Время мойки и ополаскивания составляет 25 сек.. Моноблок в автоматическом режиме подает бутыли в зону розлива, осуществляет налив воды до установленного уровня, набрасывание и укупорку крышки и подъем бутыля для надевания пакета. Оператор пополняет крышками подающий желоб, который вмещает 20 штук.. На поднятый бутыль надевает пакет и снимает его на транспортировочный поддон. Грузчик снимает пакеты и крышки с поступившей тары, увозит поддоны с продукцией в место хранения и помогает надевать пакеты.

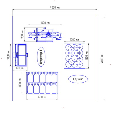
Линия розлива воды в 19 литровые бутыли до 200 бутылей в час.
 

Состав линии:
1. Полуавтоматический модуль мойки МПР19М-200
2. Автоматический моноблок МНА19М-200
3. Стелаж транспортировочный на 46 бутылей СТ46


1 шт.
1 шт.
2 шт.

  857 000* руб. с НДС 22%  

Оператор загружает по 2 бутыля в модуль мойки, перемещает их по зонам обработки и выгружает на транспортер моноблока. Время мойки и ополаскивания составляет 30 сек.. Моноблок в автоматическом режиме подает бутыли в зону розлива, осуществляет налив воды до установленного уровня, набрасывание и укупорку крышки и подъем бутыля для надевания пакета. Оператор пополняет крышками подающий желоб, который вмещает 20 штук.. На поднятый бутыль надевает пакет и снимает его на транспортировочный поддон. Грузчик снимает пакеты и крышки с поступившей тары, увозит поддоны с продукцией в место хранения и помогает надевать пакеты.

Подключаемые инженерные сети:
1. Электропитание
2. Магистраль с продуктовой водой
3. Канализация
4. Сжатый воздух

 
1 фаза, 220 В, не более 7 КВт;
0,3-0,4 МПа, 3 м3/час;
Ду 50 мм;
0,5-0,6 МПа

 В КОМПЛЕКТЕ С ОБОРУДОВАНИЕМ МОЖНО ПРИОБРЕСТИ:

• Стол - декапер - для снятия стрейч пленки, пакетов и пробок;
• Модуль термоусадки колпачков;
• Транспортеры, рольганги и другое технологическое оборудование и оснастку.

*- Окончательная цена определяется после согласования технических характеристик модуля.

188642, Ленинградская обл., г.Всеволожск, ул. Пушкинская, д. 107 пом. 5
Отдел продаж:+7(812) 645-74-23, технический отдел +7(921)981-48-41 highcom@yandex.ru
Написать директору dir.highcom@yandex.ru
ВВЕРХ